Ari. A Boutique Spa

Interior Design
Chapel Hill, NC
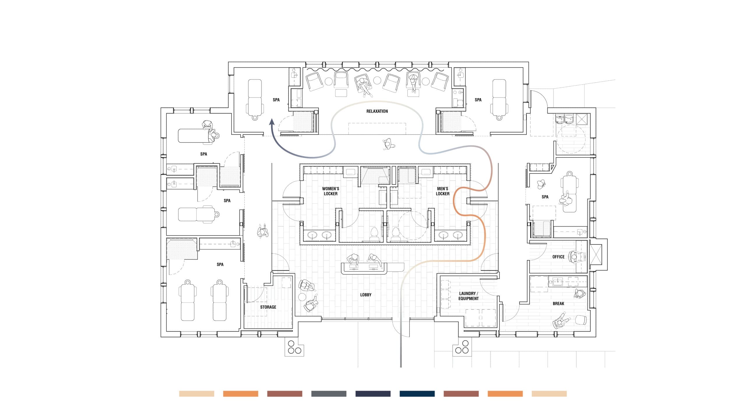
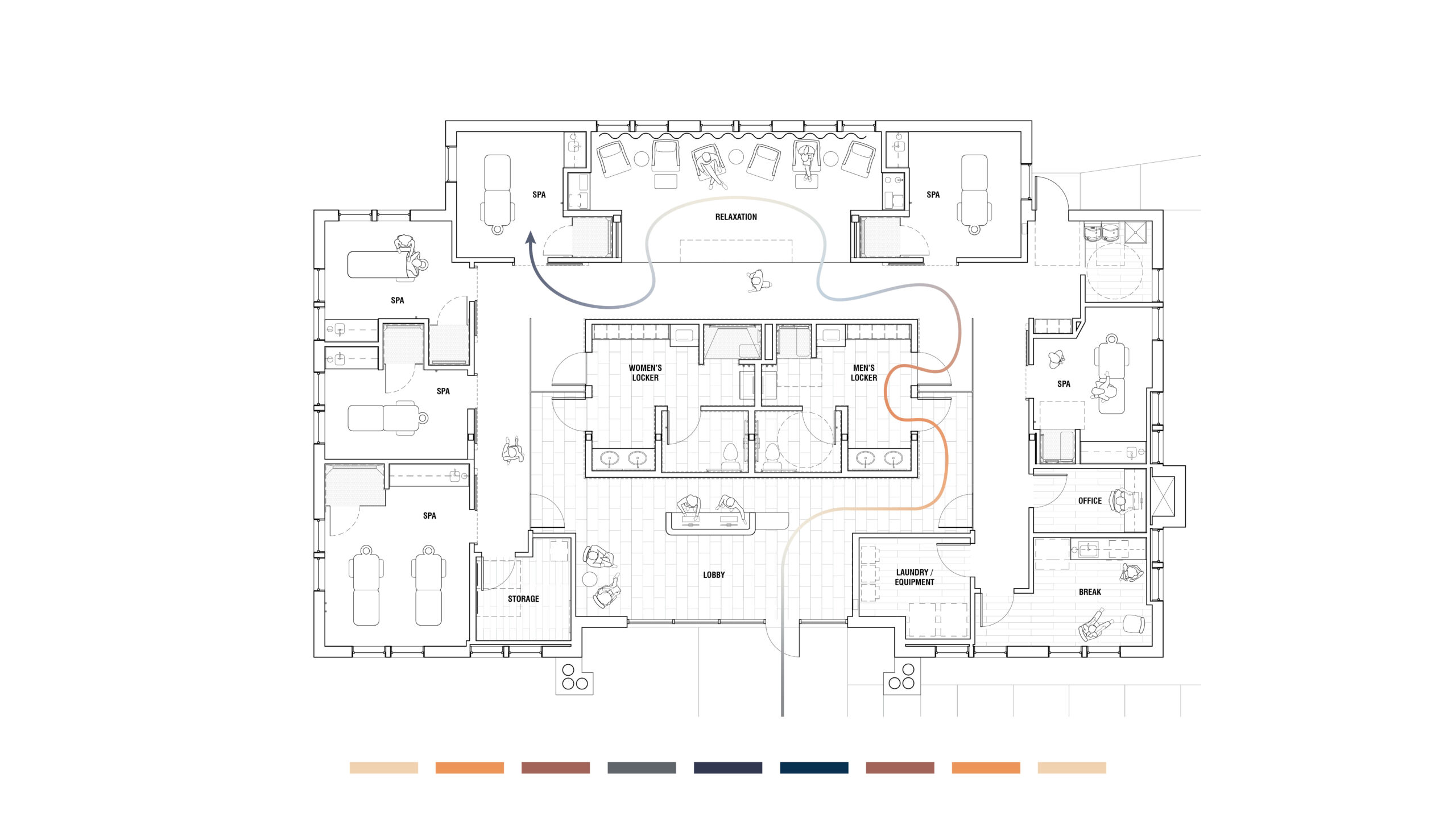
Inspired by the cleansing experience of a passing rain shower, this luxury spa offers guests a sanctuary of relaxation and revitalization. Thoughtfully curated color palettes, natural materials, soft lighting, and carefully tuned acoustics create a harmonious atmosphere. Minimalist surfaces in warm earth tones enhance the sense of calm, while the spatial design ensures acoustic privacy, insulating guests from distractions and fostering deep tranquility.

© 2026 All Rights Reserved.