Cary Pediatric Dentistry

Interior Design, Experience Design
Cary, NC
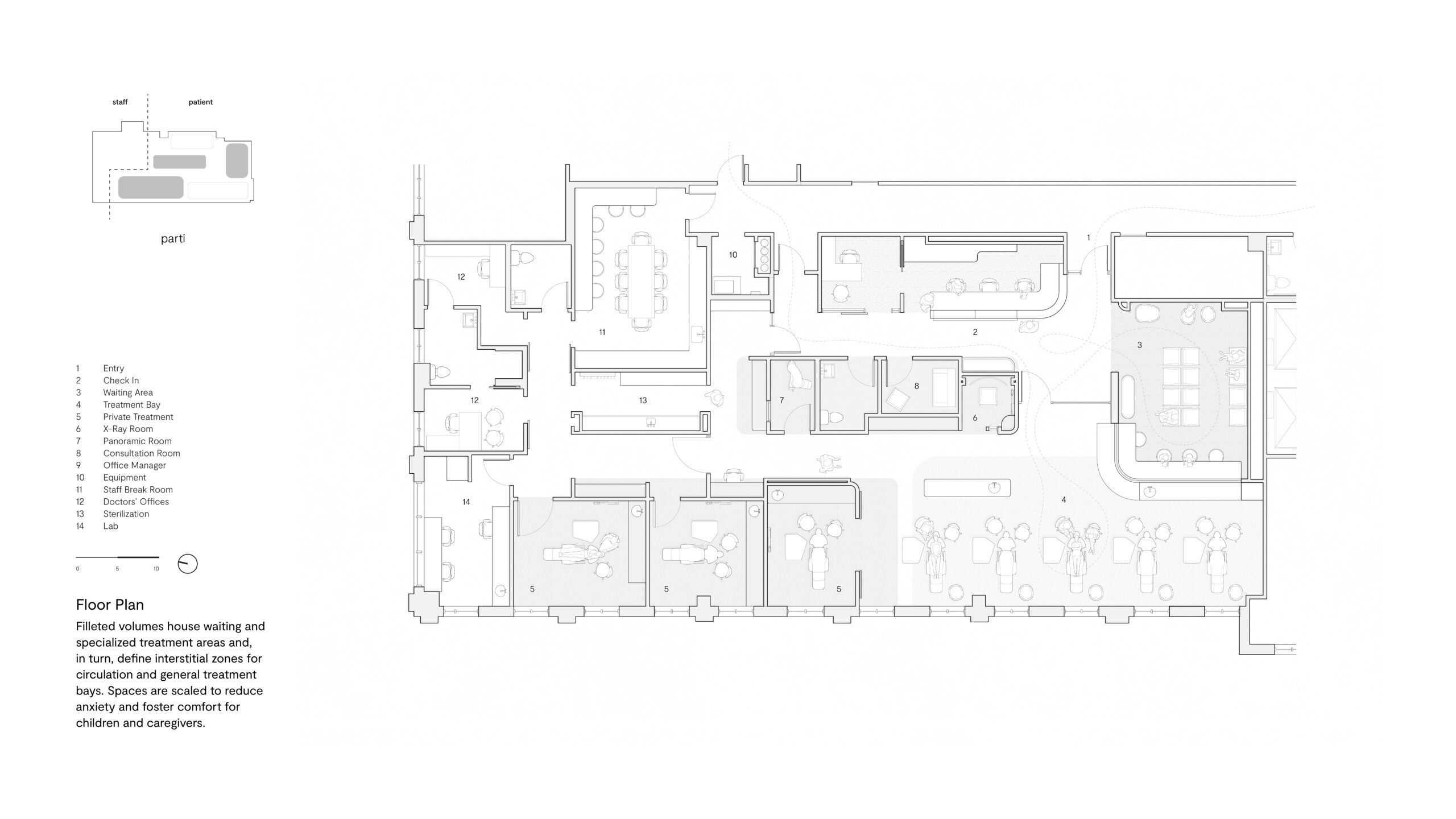
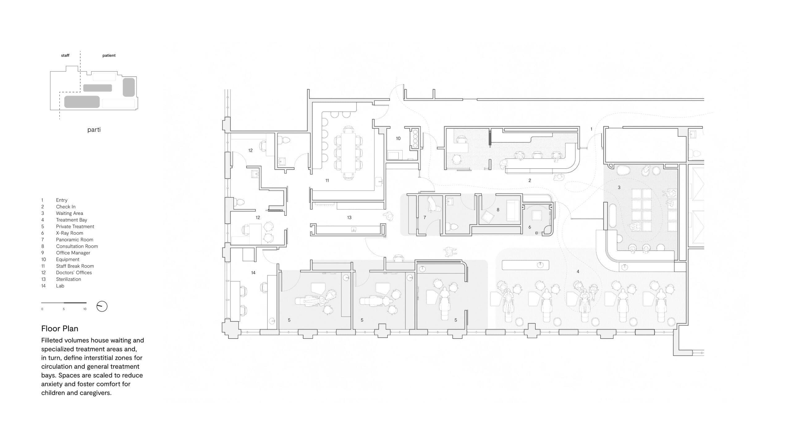
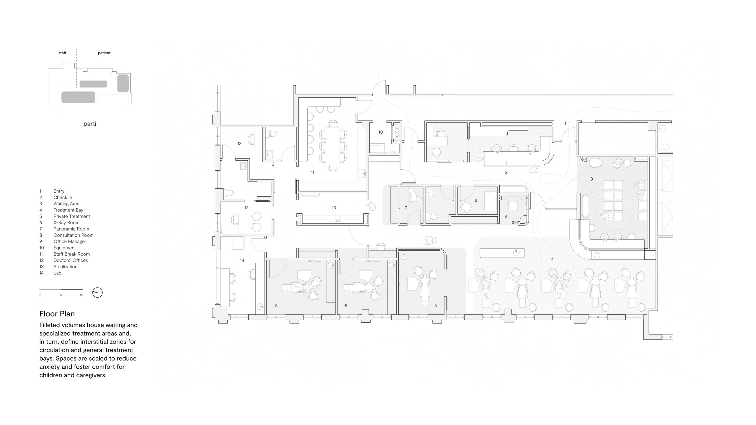
Established as a playful, child-focused practice, the design of Cary Pediatric Dentistry’s new home balances vibrancy and thoughtful organization. Waiting and clinical spaces are expressed as textured volumes, carved open to reveal vivid interiors. Blending with daylight, brilliant hues animate the clinic—fostering comfort, sparking curiosity, and easing anxiety for patients and caregivers. By pairing efficient clinical operations with warmth, the space embodies the client’s mission: a practice that is clean, welcoming, and imaginative for young patients.

© 2026 All Rights Reserved.