Fox and Bailey

Architecture, Interior Design
Raleigh, NC
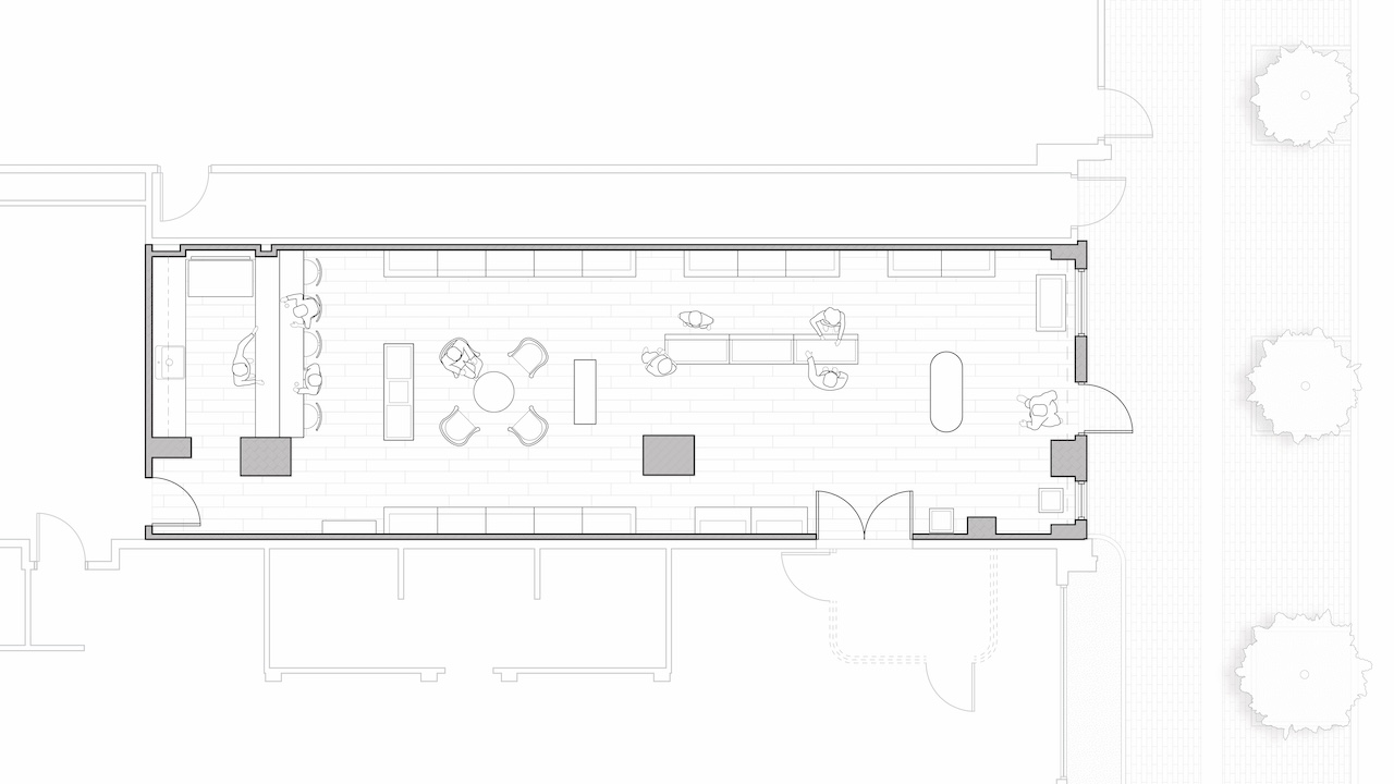
Located in The Village District, a prominent Raleigh shopping destination, a well-established jeweler has expanded their offerings with this bespoke men’s watch store. Presented as a speakeasy, clients are encouraged to linger, relax, and enjoy a craft cocktail while considering their next purchase. Reclaimed materials, exposed existing brick walls, low ambient lighting and warm natural materials frame merchandise and enrich the atmosphere.

© 2026 All Rights Reserved.